- Woonoppervlakte
- Circa 75 m²
- Perceeloppervlakte
- Circa 91 m²
- Bouwjaar
- Gebouwd in 1920
- Aantal kamers
- 4 kamers (3 slaapkamers)
In de rustige en geliefde Visbuurt staat deze prima onderhouden tussenwoning op 91 m² eigen grond. Aan de voorzijde woon je in een autoluwe straat met weinig verkeer, terwijl je via de achterzijde gewoon met de auto bij de woning kunt komen. De omgeving is kindvriendelijk en bijzonder praktisch: scholen, supermarkten, winkels, het station en het centrum van Den Helder liggen allemaal op loop- of fietsafstand.
De woning is door de jaren heen netjes opgeknapt. Zo is de bovenverdieping uitgebouwd, is de voorgevel vernieuwd en zijn diverse elektra- en leidingwerkzaamheden uitgevoerd. In 2020 zijn alle radiatoren vervangen, waardoor het gehele verwarmingssysteem modern en fris is. De centrale verwarming (ketel uit 2010) verzorgt zowel de verwarming als het warme water.
Via de voorentree kom je binnen in een lichte woonkamer. Aan de achterzijde ligt de ruime keuken, voorzien van diverse inbouwapparatuur en volop werkruimte. Aangrenzend vind je de badkamer met douche en toilet, praktisch gesitueerd op de begane grond. Vanuit de keuken loop je zo de tuin/binnenplaats op, waar de ruime berging en de garage zich bevinden. Dankzij de achterom is de woning uitstekend bereikbaar met fiets, motor of auto — een groot pluspunt in deze wijk.
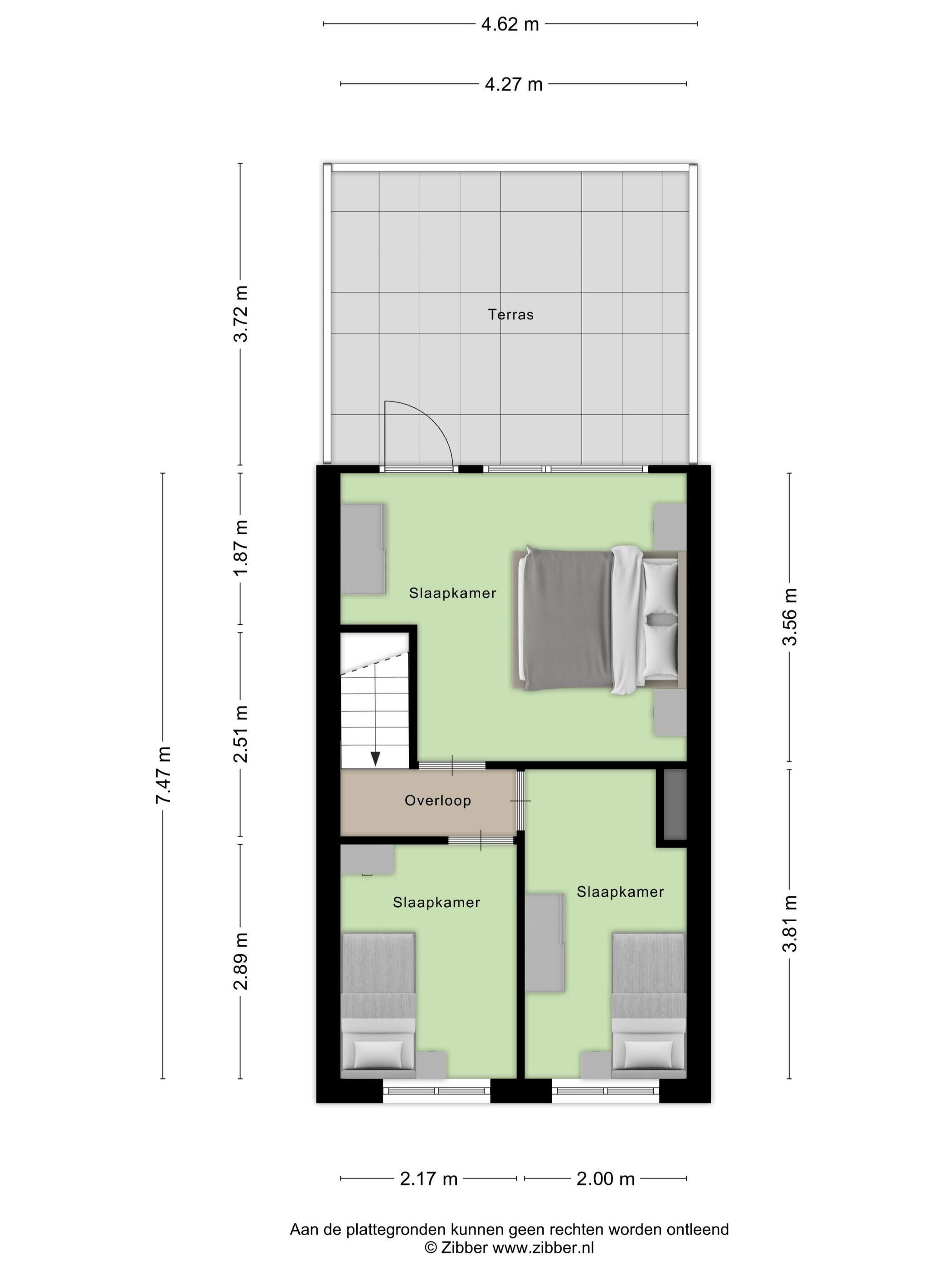
Op de eerste verdieping bevinden zich drie slaapkamers. De slaapkamer aan de achterzijde is extra ruim, beschikt over kunststof kozijnen en heeft directe toegang tot een zonnig dakterras. Zowel het dakterras als de tuin zijn perfect gelegen op het zuidwesten, zodat je hier tot laat kunt genieten van de zon.
De woning is jarenlang verhuurd geweest en altijd netjes onderhouden. Omdat de eigenaar er zelf nooit heeft gewoond, wordt de woning verkocht in de huidige staat (‘as is’) en wordt in de koopovereenkomst een niet-zelfbewoningsclausule opgenomen. Ook is de opkoopbescherming van toepassing.
De woning is per direct te betrekken en heeft een richtprijs van € 249.500,- k.k.
Over de buurt:
De Visbuurt staat bekend als een sfeervolle, karaktervolle wijk met een centrale ligging. De Hartenstraat is een rustige woonstraat met een dorps gevoel en weinig verkeersdrukte. Alles ligt dichtbij: winkels, sportvoorzieningen, scholen, speeltuintjes en het station bevinden zich binnen loop- of fietsafstand. Ook het centrum van Den Helder is snel te bereiken, waardoor je hier zowel de rust van de woonwijk als het gemak van de stad combineert.
Disclaimer:
Deze verkoopinformatie is met de grootst mogelijke zorg samengesteld. Alle verstrekte informatie, waaronder maatvoeringen, oppervlakten, bouwjaren, onderhoudsstatus en technische gegevens, is indicatief. Aan deze gegevens kunnen geen rechten worden ontleend. De woning betreft een ex-huurwoning; verkoper heeft de woning niet zelf bewoond en kan de feitelijke staat en werking van installaties of onderdelen daarom niet volledig garanderen. De woning wordt verkocht ‘as is’. De niet-zelfbewoningsclausule en opkoopbescherming zijn van toepassing en worden opgenomen in de koopovereenkomst. Koper wordt geacht eigen onderzoek te verrichten naar alle zaken die voor hem/haar van belang zijn.
Overdracht
- Vraagprijs
- € 229.500 k.k.
- Status
- Verkocht onder voorbehoud
- Aanvaarding
- Direct
Bouw
- Object type
- Eengezinswoning, tussenwoning
- Soort bouw
- Bestaande bouw
- Bouwjaar
- 1920
- Soort dak
- Plat dak bedekt met bitumineuze dakbedekking
Oppervlakte en inhoud
- Woonoppervlakte
- 75 m²
- Perceeloppervlakte
- 91 m²
- Inhoud
- 266 m³
- Externe bergruimte
- 15 m²
- Gebouwgeb. buitenruimte
- 17 m²
Indeling
- Aantal kamers
- 4 kamers (3 slaapkamers)
- Aantal badkamers
- 1 badkamer en 1 apart toilet
- Badkamervoorzieningen
- Toilet, inloopdouche, wastafel
- Voorzieningen
- Tv kabel, glasvezel kabel, natuurlijke ventilatie
Energie
- Energielabel
- E
- Energielabel registratie
- 10-11-2025
- Isolatie
- Dubbel glas, dakisolatie
- Verwarming
- CV-ketel
Buitenruimte
- Ligging
- In woonwijk
- Afmetingen achtertuin
- 15.8844 m² (3.72 meter diep en 4.27 meter breed)
- ligging tuin
- Gelegen op het zuidwesten en bereikbaar via achterom
Parkeergelegenheid
- Soort parkeergelegenheid
- Openbaar parkeren
Indicatie hypotheeklasten
Eigen inleg:
Spaargeld / overwaarde
Rente:
Laagste 10-jaars rente
Laagste 10-jaars rente
2,78% - Centraal Beheer Groen... - NHG
3,04% - Centraal Beheer Groen... - 80%
Laagste 20-jaars rente
3,29% - Centraal Beheer Groen... - NHG
3,52% - Centraal Beheer Groen... - 80%
Laagste 30-jaars rente
3,41% - Centraal Beheer Groen... - NHG
3,7% - Argenta Groen Hypotheek... - 80%
Hypotheek:
Bruto maandlasten: € 0 p/m
Netto maandlasten: € 0 p/m
Hoe berekenen we dit?
Het rentepercentage is gebaseerd op de laagste 10 jaars vaste rente voor één hypotheekdeel. De vermelde rente (2.78% met NHG) is gecontroleerd op 15-03-2026. Deze berekening is gebaseerd op een annuïteitenhypotheek die volledig wordt afgelost, waarbij de maandlasten gedurende de gehele looptijd gelijk blijven. De werkelijke rente en netto maandlasten kunnen variëren, afhankelijk van uw persoonlijke situatie en de hypotheekverstrekker. Raadpleeg een financieel adviseur voor een nauwkeurige berekening en advies. Aan deze berekening kunnen geen rechten worden ontleend; het dient enkel als indicatie.
Documentatie
Kadastrale kaart
Leefomgeving
WOZ waarderapport
BAG uittreksel
Plattegronden PDF
Bezichtiging
Bod uitbrengen
Waardebepaling
Zoekopdracht
Alles downloaden
Op de kaart
De Huur- en Koopwoningbemiddelaar & Gewoon VvE Beheer
Indien u vragen heeft of u wilt een bezichtiging inplannen, dan kunt u gebruik maken van het formulier hiernaast. Er zal daarna op korte termijn contact met u worden opgenomen.
Het Nieuwe Diep 33
1781AD, Den helder
(+31)223-694396 info@dekoopwoningbemiddelaar.nl www.dekoopwoningbemiddelaar.nlContact opnemen
De Koopwoningbemiddelaar
Ben je klaar om jouw woning te verkopen? Onze ervaren makelaars nemen je mee in het hele verkoopproces. Van het bepalen van de juiste vraagprijs tot het promoten van jouw woning en de afwikkeling van de verkoop, wij zorgen ervoor dat je zorgeloos en succesvol je woning kunt verkopen.
STAP 1: Bepaling van de vraagprijs
Het succesvol verkopen van je woning begint bij het vaststellen van de juiste vraagprijs. Onze makelaars doen een grondige marktanalyse en evalueren de staat en locatie van jouw woning om een competitieve prijs te bepalen. Met onze gratis waardebepaling krijg je een realistisch beeld van wat jouw woning op de huidige markt waard is.
STAP 2: Verkoopstrategie ontwikkelen
Een doeltreffende verkoopstrategie is cruciaal om je woning onder de aandacht te brengen van de juiste kopers. We werken nauw met je samen om jouw woning op de beste manier te positioneren en presenteren, rekening houdend met jouw doelgroep. Onze makelaars maken gebruik van innovatieve marketingtechnieken om een breed publiek te bereiken en het beste resultaat te behalen.
STAP 3: Presentatie van de woning
Een aantrekkelijke presentatie van jouw woning is de sleutel tot succes. Wij zorgen ervoor dat jouw woning opvalt in de markt met hoogwaardige foto's, overtuigende beschrijvingen en een doordachte online en offline marketingcampagne.
STAP 4: Voorbereiding op de bezichtigingen
Een opgeruimde, aantrekkelijke woning maakt een sterke eerste indruk op potentiële kopers. Onze makelaars bieden praktische tips en begeleiding om ervoor te zorgen dat jouw woning op zijn best wordt gepresenteerd.
STAP 5: Bezichtigingen
Bij het inplannen en uitvoeren van bezichtigingen nemen we jouw wensen en schema in acht. We zorgen ervoor dat potentiële kopers een rondleiding krijgen die hen een goed beeld geeft van de mogelijkheden van jouw woning.
STAP 6: Onderhandelingen
Zodra er een bod op jouw woning komt, begeleiden onze makelaars je door de onderhandelingen. We beoordelen elk bod zorgvuldig en bieden advies om ervoor te zorgen dat je het beste resultaat krijgt.
STAP 7: Afwikkeling van de verkoop
Wanneer er overeenstemming is bereikt over de prijs, zorgen we ervoor dat alle nodige documentatie correct en tijdig wordt opgesteld en verzonden naar de notaris.
Nieuwste reviews
-
VvE Kruiswijk-III
Sinds vorig jaar zijn we overgestapt; daarvoor deden we het beheer vanaf de nieuwbouw zelf. Door tijdgebrek bleek dit geen goede beslissing....
-
Geert-Jan Schaaij
Wij zijn zeer tevreden met de overstap van een andere beheerder, samen met onze 19 andere eigenaren. De bereikbaarheid is uitstekend en pro...
-
Bestuur VvE Koningshoeve
We zijn gevraagd onze ervaringen met onze VvE-beheerder te delen. Als vereniging met 43 appartementen hebben we niets aan te merken op deze...